服务热线:13758298843
明渠流量计/巴氏流量计
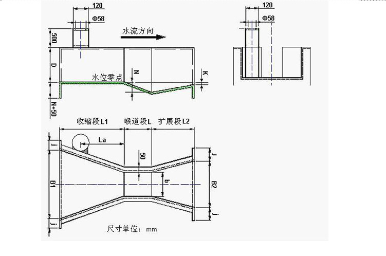
明渠流量计以流速-水位运算法为基础,并采用了先进的流速测量仪和水位测量仪,从而确保测速和运算的准确性的一种新型智能化流量系统,根据渠道的宽度和测量精度的要求,采用单探头法或多探头法明渠测流的数学模型。明渠流量计是非接触测量,能在较恶劣的环境中应用。明渠流量计应用场所有城市供水引水渠、火电厂冷却引水河排水渠、污水治理流入和排放渠、工况企业废水排放以及水利工程和农业灌溉用渠道等。(我们不提供配套的巴歇尔槽)
明渠流量计/巴氏流量计特点
明渠流量计以流速-水位运算法为基础,并采用了先进的流速测量仪和水位测量仪,从而确保测速和运算的准确性的一种新型智能化流量系统,根据渠道的宽度和测量精度的要求,采用单探头法或多探头法明渠测流的数学模型。明渠流量计是非接触测量,能在较恶劣的环境中应用。明渠流量计应用场所有城市供水引水渠、火电厂冷却引水河排水渠、污水治理流入和排放渠、工况企业废水排放以及水利工程和农业灌溉用渠道等。(我们不提供配套的巴歇尔槽)


测量范围大,流量测量不受支流面回水的影响。
测量时不受水中漂浮物泥沙、气泡和水位大幅度变化的影响流量传感器对水流产生阻力结构简单、体积小、安装方便。
标准渠道不需要改造可直接安装,安装施工费用低。
仪表显示输出功能齐全,可显示水位、流速、流量、累计流量等测量数据,并具有RS-485通讯接口。
具有水位、泥位、流速超限报警功能。
具有数据保存功能,可在长期停电的情况下保存设置参数和流量值














为了服务好每一位新老客户,为了更好的“以客户为中心”,杭州美控已在全国设立了21处办事处。我们将更好的服务带到您的身边,将中国过程自动化解决方案应用到每一位需要我们的用户家中。
本公司向用户承诺,本仪表供货时所应提供的硬件、附件在材质和制造工艺上都不存在任何缺陷。从仪表购买之日起开始计算,在质保期内,若收到用户关于此类缺陷的通知,
本公司对确实有缺陷的产品实行无条件免费维修或免费更换。本公司对所有记录仪产品一律保证7天包退1年保修,终身维修。
售后服务承诺:
1、客户的技术疑问,我们承诺在4个小时内处理完毕。
2、返厂维修的仪表我们承诺在3个工作日内出具检测结果,7个工作日内完成维修。
3、仪表返给客户之后2周之内对用户进行回访,并提供自动化相关技术的免费咨询。
售后服务承诺:
1、客户的技术疑问,我们承诺在4个小时内处理完毕。
2、返厂维修的仪表我们承诺在3个工作日内出具检测结果,7个工作日内完成维修。
3、仪表返给客户之后2周之内对用户进行回访,并提供自动化相关技术的免费咨询。










